4 Galloway Crescent

Uxbridge

Open House Jan 18th, 2-4PM
4 Galloway Crescent, Uxbridge

$1,575,000


Bedrooms: 4

Bathrooms: 4

Living Area: 3,000 sqft

Price Per Sqft: $525.00


About this Detached

in Uxbridge

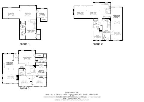
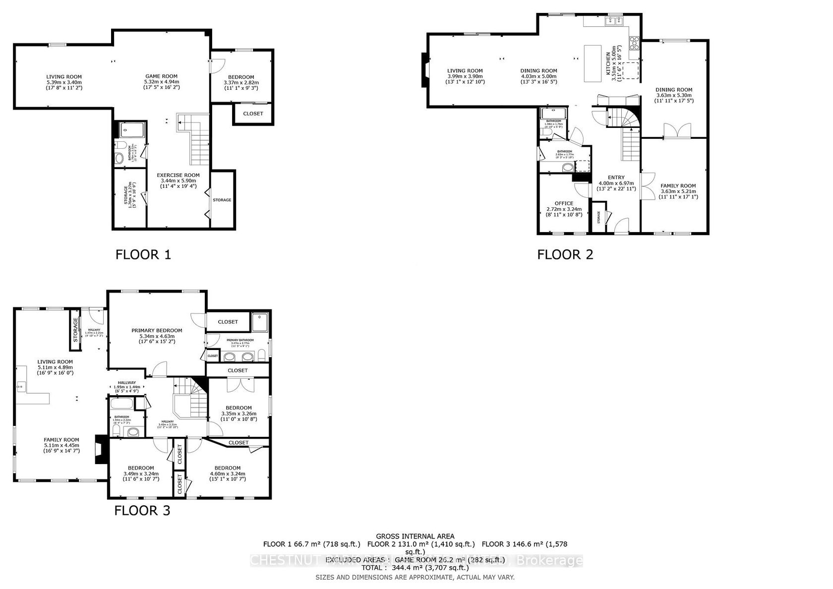
Set in Uxbridge's most coveted neighbourhood, this home is positioned on a private 61x113 ft lot backing onto protected green space. Occupying a premier position at the top of the hill-where rare backyard privacy meets open sky and long views-the addition above the garage becomes a defining feature, allowing a private in-law or young-adult suite to support multi-generational living, or to remain an expansive family great room-a rare way for families to share one roof while easing the cost of living, without sacrificing space or independence. With over 4,000 square feet of finished living space, the home also stands confidently on its own as a substantial single-family residence. Sitting at the heart of the home, the fully renovated kitchen features Cambria quartz countertops, stainless steel appliances, a large centre island, and a dedicated coffee bar and pantry - connecting everyday living with both indoor and outdoor spaces. French doors link the formal living room to a dramatic foyer, where a central skylight brings natural light down through the core of the home. A remodelled main-floor bath (2025) and upgraded laundry room (2025) bring recent updates to two of the home's most used spaces. Upstairs, four well-sized bedrooms and a comfortable great room establish a distinct private level for family and guests. The added loft is complete with vaulted ceilings, skylights, a gas FP, hardwood floors, & a kitchenette/wet bar. A second-level balcony extends along the back of the addition, offering separate access and pretty views. Throughout the home, restored oak hardwood floors (2020), smooth ceilings, pot lights, and new windows (2023), speak to the level of care invested over time. The finished basement offers a 5th bedroom, bathroom & games room. Just steps from the Quaker Trail and mins from Uxbridge's off-leash dog park, schools, and historic downtown, this home offers rare backyard privacy and elevated views within one of the town's most established pockets.

Listed by CHESTNUT PARK REAL ESTATE LIMITED.


Photo 0 at 4 Galloway Crescent, Uxbridge

Photo 0

Photo 1 at 4 Galloway Crescent, Uxbridge

Photo 1

Photo 2 at 4 Galloway Crescent, Uxbridge

Photo 2

Photo 3 at 4 Galloway Crescent, Uxbridge

Photo 3

Photo 4 at 4 Galloway Crescent, Uxbridge

Photo 4

Photo 5 at 4 Galloway Crescent, Uxbridge

Photo 5

Photo 6 at 4 Galloway Crescent, Uxbridge

Photo 6

Photo 7 at 4 Galloway Crescent, Uxbridge

Photo 7

Photo 8 at 4 Galloway Crescent, Uxbridge

Photo 8

Photo 9 at 4 Galloway Crescent, Uxbridge

Photo 9

Photo 10 at 4 Galloway Crescent, Uxbridge

Photo 10

Photo 11 at 4 Galloway Crescent, Uxbridge

Photo 11

Photo 12 at 4 Galloway Crescent, Uxbridge

Photo 12

Photo 13 at 4 Galloway Crescent, Uxbridge

Photo 13

Photo 14 at 4 Galloway Crescent, Uxbridge

Photo 14

Photo 15 at 4 Galloway Crescent, Uxbridge

Photo 15

Photo 16 at 4 Galloway Crescent, Uxbridge

Photo 16

Photo 17 at 4 Galloway Crescent, Uxbridge

Photo 17

Photo 18 at 4 Galloway Crescent, Uxbridge

Photo 18

Photo 19 at 4 Galloway Crescent, Uxbridge

Photo 19

Photo 20 at 4 Galloway Crescent, Uxbridge

Photo 20

Photo 21 at 4 Galloway Crescent, Uxbridge

Photo 21

Photo 22 at 4 Galloway Crescent, Uxbridge

Photo 22

Photo 23 at 4 Galloway Crescent, Uxbridge

Photo 23

Photo 24 at 4 Galloway Crescent, Uxbridge

Photo 24

Photo 25 at 4 Galloway Crescent, Uxbridge

Photo 25

Photo 26 at 4 Galloway Crescent, Uxbridge

Photo 26

Photo 27 at 4 Galloway Crescent, Uxbridge

Photo 27

Photo 28 at 4 Galloway Crescent, Uxbridge

Photo 28

Photo 29 at 4 Galloway Crescent, Uxbridge

Photo 29

Photo 30 at 4 Galloway Crescent, Uxbridge

Photo 30

Photo 31 at 4 Galloway Crescent, Uxbridge

Photo 31

Photo 32 at 4 Galloway Crescent, Uxbridge

Photo 32

Photo 33 at 4 Galloway Crescent, Uxbridge

Photo 33

Photo 34 at 4 Galloway Crescent, Uxbridge

Photo 34

Photo 35 at 4 Galloway Crescent, Uxbridge

Photo 35

Photo 36 at 4 Galloway Crescent, Uxbridge

Photo 36


LAND TRANSFER TAX CALCULATOR


Purchase Price  
First-Time Home Buyer

Ontario Land Transfer Tax
Toronto Land Transfer Tax

Province of Ontario (effective January 1, 2017)

For Single Family or Two Family Homes

  • Up to and including $55,000.00 -> 0.5%
  • $55,000.01 to $250,000.00 -> 1%
  • $250,000.01 to $400,000 -> 1.5%
  • $400,000.01 & $2,000,000.00 -> 2%
  • Over $2,000,000.00 -> 2.5%

First-time homebuyers may be eligible for a refund of up to $4,000.

Source: Calculating Ontario Land Transfer Tax
Source: Ontario Land Transfer Tax for First-Time Homebuyers

City of Toronto (effective March 1, 2017)

For Single Family or Two Family Homes

  • Up to and including $55,000.00 -> 0.5%
  • $55,000.01 to $250,000.00 -> 1%
  • $250,000.01 to $400,000 -> 1.5%
  • $400,000.01 & $2,000,000.00 -> 2%
  • Over $2,000,000.00 -> 2.5%

First-time homebuyers may be eligible for a rebate of up to $4,475.

Source: Municipal Land Transfer Tax Rates and Calculations
Source: Municipal Land Transfer Tax Rates Rebate Opportunities


MORTGAGE CALCULATOR


     
Asking Price: Interest Rate (%):
Amortization:  
Percent Down:
Down Payment:
First Mortgage:
CMHC Prem.:
Total Financing:
Monthly P&I:
* This material is for informational purposes only.

Request A Showing Or Find Out More 

Have a question or interested in this property? Send us a message!

inquire